foto-impressie-interieur
Hoewel we nog volop aan het afbouwen zijn, kun je hier alvast een imressie krijgen van de eerste ruimten die zo goed als klaar zijn!
Hier is een korte impressie van de bouw van de Boreas. Op 1 mei 2019 zijn we begonnen in een loods in Zuidbroek. Hier is het schip in 4 delen (het voorschip. het middenschip, het achterschip en de opbouw) gemaakt. Een jaar later (1 mei 2020) zijn deze delen vervoerd naar scheepswerf Pattje in Waterhuizen. Hier is het schip geassembleerd en begonnen we met de afbouw.
Na 77 weken bouwen kon de Boreas hier eind oktober te water worden gelaten. We varen naar de Oosterhaven in Groningen en klussen in de wintermaanden ijverig door zodat we in maart 2021 op de boot kunnen gaan wonen. Aanvankelijk nog een beetje kamperen maar per maand veroverden we meer leefcomfort.
Laatste nieuws
28 april 2026
Weer terug in Groningen
|
Donderdag 2 april vertrekken we uit Groningen. Vrijdag 3 april vertrekken we richting Muiden. Het waait Bft 6 en we zijn blij dat we al zo ver zijn. Na een paar onrustige uren komen we onder de dijk bij Lelystad. Inmiddels is er mist en motregen, we zijn blij dat we niet verder gaan. Zaterdag 4 april halen we in de loop van de ochtend het anker op en varen naar de Oranjesluizen. We maken een rondreis met vrienden door Zuid Holland, bezoeken Vreeswijk, Krimpen aan de IJsel, Gouda en varen over de oude Amstel weer terug naar Amsterdam. Op vrijdag 10 april meren we weer af aan de Veemkade waar de gasten op 11 april weer van boord zijn gegaan. Zaterdag 11 april varen we via Lelystad weer terug naar Groningen. We meren af in het oude Winschoterdiep, onze "zomerplek" in Groningen. |
![]() |
Muziek op de Boreas:
Sinds december 2024 zijn er in de wintermaanden huiskamerconcerten georganiseerd op de Boreas.
Het laatste concert van dit seizoen vond plaats op
| Zondagmiddag1 maart 2026: Strijkkwartet Fiore | |||||
|
|
Preslav Lambev – Viool Marian Petkov – Viool II Ratna Roovers – Altviool Nina Vasquez Tietge – Cello
|
In september 2024 ontmoetten de vier jonge muzikanten elkaar aan het Met een open blik en een gedeelde liefde voor kamermuziek blijft het kwartet zich ontwikkelen,
|
|||
Wil je weten wat onze actuele positie is? Kijk dan op Marinetraffic.com!
Link naar filmpje |
ORIGAMI workshops
|
![]() |
Origami workshops aan boord van de Boreas!
|
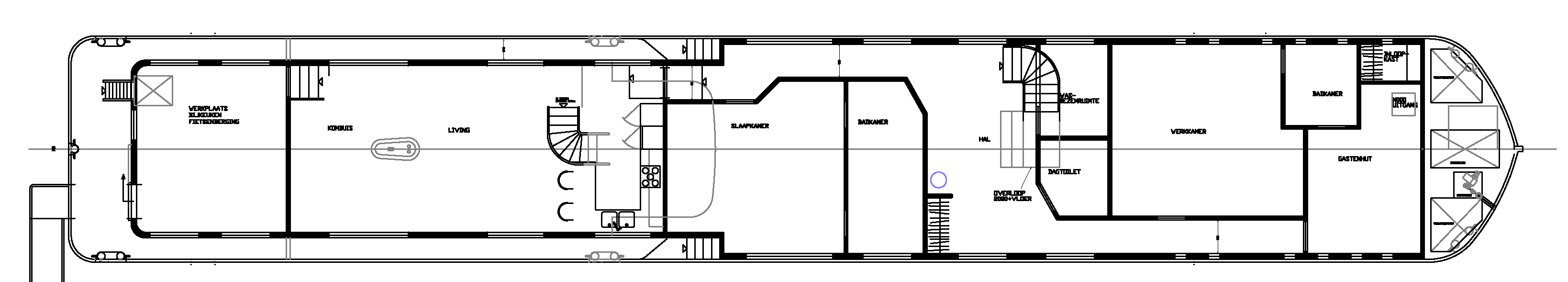
We gaan op het water wonen!
Het idee om op een schip te gaan wonen is geboren; waar begin je dan?
Beiden hebben we natuurlijk woonwensen en met het wonen aan de Langestraat waren we verwend. De grote en hoge kamer met een balustrade voldeed aan al onze verwachtingen. Graag zien we daar elementen van terug.
Muziek is altijd al leidraad in ons leven geweest en met het dwarsfluit spelen en het zingen van Anne, is het hebben van een woonruimte met een goede akoestiek belangrijk. Een woonruimte waar gemusiceerd kan worden, is een grote wens.
Het geluid van meerdere instrumenten tegelijk, vraagt om hoogte in de woonkamer. Bij een laag plafond kan het geluid niet weg en wordt het geluid voor de toehoorder al snel irritant.
We zijn graag gastvrij en vinden het beiden belangrijk om mensen te kunnen ontvangen. Naast een logeerkamer met een aparte douche, zou een werkkamer om workshops te kunnen geven ideaal zijn. Nu Anne stopt met haar werk aan de RUG, is één van haar voornemens meer workshops te gaan geven. Omdat ze dit professioneel op gaat zetten, gaan we een V.O.F. oprichten.
Zelf zou ik graag een hobbyruimte hebben om te kunnen klussen. Een werkbank heb ik in het paleis node gemist.
Al deze woonwensen moeten vorm krijgen op een schip, maar wat voor schip? Hoe groot? Bestaand of nieuw?
Het verkrijgen van een ligplaats is in Groningen is moeilijk. Binnen het huidige systeem komt het erop neer, dat als je een bestaand schip koopt, je de bijbehorende ligplaats in eigendom krijgt. Door dit systeem kosten verwaarloosde schepen veel te veel geld, enkel en alleen omdat ze een mooie ligplaats hebben. Als je het oude schip voor een nieuwe wilt vervangen, heeft de gemeente bovendien eisen aan wat er op die plek mag komen te liggen. Veelal moet het nieuwe schip wat korter worden dan de oude, om wat open ruimte tussen de liggende schepen te maken. Dan moet je nog van het oude schip af zien te komen en dan maar hopen dat er geen asbest in zit…
Voor nieuwkomers zonder koop, is er een wachtlijst. Twee jaar geleden begonnen we op nummer 126 en inmiddels staan we op nummer 93; dat schiet nog niet op.
Voor de nieuwbouw van woningen, heeft de gemeente Groningen veel plannen. In deze plannen, waaronder de watervisie van Groningen, worden nieuwe ligplaatsen voor schepen benoemd. Het is allemaal nog ver weg, wel is er voor de toekomst hoop.
Bij de gemeente heb ik de maximale lengte en breedte en hoogte van schepen uitgezocht. In de plannen van de gemeente zijn ligplaatsen in doorgaand vaarwater zoals b.v. het Eemskanaal. Daar mogen geen woonarken liggen; wel schepen met een redelijke omvang waarnaast een passerend binnenschip eventueel kan afmeren. In één van de verordeningen staat b.v. dat de gangboorden zo breed moeten zijn, dat een brancard moet kunnen passeren. Om onze kansen op een ligplaats maximaal te maken, hebben we met al deze gemeente-eisen rekening gehouden.
Als er al een nieuw varend woonschip zal komen, heb ik als varensman natuurlijk ook zo mijn wensen. We worden een dagje ouder en daarom moet het schip maximaal manoeuvreerbaar zijn. Geen gillende kreten naar Anne dat ze een touw vast moet maken; wel rustig voor de kant leggen en in alle rust de lijnen vast kunnen maken. Dat vergt een aantal pk’s achterin en een boegschroef, nog liever een stuurrooster (draaibare boegschroef) voorin. Hiermee krijg je het schip alle kanten op. Daarnaast moet het stevig worden gebouwd en tegen een stootje kunnen. Daarom bouwen we de huid en het vlak van 8 mm dik staal en wordt de romp versterkt met een berghout. (een stalen versterking rondom)
Met al deze ingrediënten hebben we scheepsarchitect Klaas Bes geconfronteerd. Klaas ken ik nog van onze wereldreis. Hij zeilde mee van de Filepijnen naar Japan en bleek een betrouwbare zeeman. Omdat ik mijn hele leven gevaren heb, is deze bron van kennis mee verwerkt in het ontwerp. In dialoog met Klaas, groeit het schip met inbreng van Anne naar een nieuw huis.
![]() |
![]() |
![]() |
|
|
|
Huiskamerconcerten
| Zondagmiddag 1 maart strtijkkwartet FIORE | ||||||
|
|
Preslav Lambev – Viool Marian Petkov – Viool II Ratna Roovers – Altviool Nina Vasquez Tietge – Cello
|
In september 2024 ontmoetten de vier jonge muzikanten elkaar aan het Met een open blik en een gedeelde liefde voor kamermuziek blijft het kwartet zich ontwikkelen,
|
||||















